









Opis nieruchomości
Sprzedaż zwolniona z podatku PCC 2% (zakup mieszkania deweloperskiego).Oferujemy do sprzedania dwupoziomowy apartament w stanie deweloperskim o pow. użytkowej 74,60 m2.
Inwestycja położona przy ulicy Batorego Oświęcimiu w odległości około 500 od centrum osiedla Chemików.
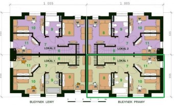
Na całość inwestycji składają się dwa budynki mieszkalne jednorodzinne w zabudowie bliźniaczej (2 połówki bliźniaka, każda z 2 narożnymi piętrowymi lokalami mieszkalnymi).
W każdym apartamencie mieszka się jak w niedużym, piętrowym szeregowym domu.
Latem można korzystać z uroków własnego ogrodzonego ogródka o pow. ok. 61 m2.
Dodatkowym atutem mieszkania są 2 miejsca postojowe przed budynkiem dedykowane do każdego mieszkania.
W Miejscowym Planie Zagospodarowania Miasta Oświęcim teren objęty jednostką
52 MN/U - teren zabudowy mieszkaniowej jednorodzinnej z uzupełniającą zabudową usługową
Rozkład lokalu:
- Na parterze znajduje się salon z wyjściem do kameralnego ogródka, aneks kuchenny, łazienka oraz pomieszczenie gospodarcze.
- Na piętrze mieści się strefa prywatna:pokój rodziców z wydzieloną garderobą, 2 pokoje dziecięce, duża łazienka
- dodatkowa spora przestrzeń magazynowa na strychu (dla każdego lokalu osobna).
Mieszkanie w stanie deweloperskim, bezczynszowe, ogrzewanie podłogowe z własnym piecem gazowym dwufunkcyjnym,
Apartamenty wykonane z wysokiej jakości materiałów budowlanych, będą oddawane w stanie deweloperskim,
do wykonania we własnym zakresie pozostaną:
-podłogi (panele, płytki),
-ściany (gładzie malowanie),
-schody (okładzina drewna lub płytki)
-biały montaż.
LOKAL nr 1 ( prawy przedni 74,6m2):
Parter:
|
|
0. Hall wspólny
|
-
|
1. Przedpokój
|
2,9m2
|
2. Łaz./C.O.
|
2,8m2
|
3. Salon z kuchnią
|
25,3m2
|
4. Schowek
|
1,4m2
|
5. Schody (50%)
|
1,9m2
|
Piętro:
|
|
6. Schody (50%)
|
1,9m2
|
7. Komunikacja
|
3,6m2
|
8. Pokój 1
|
11,7m2
|
9. Łazienka
|
5,1m2
|
10. Pokój 2
|
9,9m2
|
11. Pokój 3
|
8,1m2
|
Nota prawna
Opis oferty zawarty na stronie internetowej sporządzany jest na podstawie oględzin nieruchomości oraz informacji uzyskanych od właściciela, może podlegać aktualizacji i nie stanowi oferty określonej w art. 66 i następnych K.C.Szczegóły




