Opis nieruchomości
OŚWIĘCIM CENTRUM | LOKAL 116,8 m² W ODNOWIONEJ KAMIENICY Z APARTHOTELEM
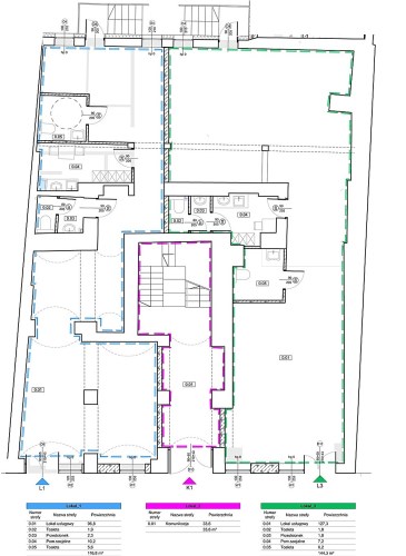
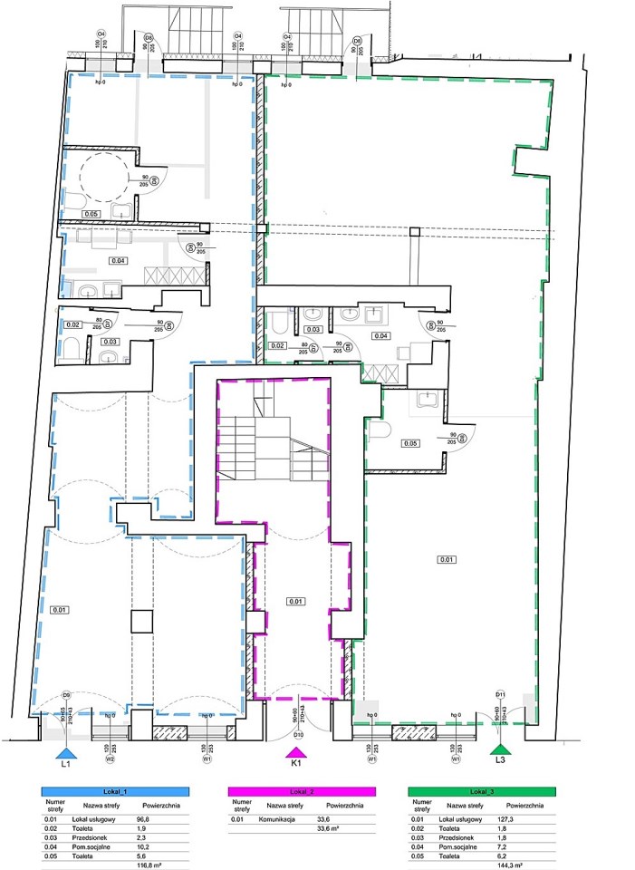
Do wynajęcia przestronny lokal użytkowy o powierzchni 116,8 m², położony na parterze reprezentacyjnej kamienicy przy ul. Mayzla 1, w bezpośrednim sąsiedztwie Rynku Głównego w Oświęcimiu. To wyjątkowa propozycja dla przedsiębiorcy, który szuka miejsca w ścisłym centrum miasta, w prestiżowej i historycznej lokalizacji.
Nieruchomość przeszła kapitalny remont, a w kamienicy właśnie oddano do użytku 11 apartamentów hotelowych. To bardzo istotny atut dla przyszłego Najemcy lokalu na parterze, ponieważ stała obecność gości aparthotelu zwiększa potencjał biznesowy miejsca i sprzyja prowadzeniu działalności usługowej lub gastronomicznej.
Lokal posiada wejście oraz witryny od ul. Mayzla, a także dodatkowe wejście od ul. Berka Joselewicza. Na obecnym etapie istnieje możliwość indywidualnej aranżacji wnętrza zgodnie z potrzebami przyszłego Najemcy, co daje szerokie możliwości dopasowania przestrzeni do planowanego rodzaju działalności.
To idealne miejsce pod restaurację, kawiarnię, bistro lub inny koncept gastronomiczny skierowany zarówno do mieszkańców, turystów, jak i gości aparthotelu. Ulica Mayzla została przekształcona w atrakcyjny deptak z ogródkami gastronomicznymi, co dodatkowo buduje klimat tego miejsca i zwiększa jego handlowo-usługowy potencjał.
Atuty lokalu
-
powierzchnia użytkowa 116,8 m²,
-
lokal na parterze w odrestaurowanej kamienicy,
-
możliwość indywidualnej adaptacji wnętrza,
-
nowe instalacje: elektryczna, wodno-kanalizacyjna oraz centralne ogrzewanie miejskie,
-
witryny i drzwi wejściowe klasy P4,
-
wejście od ul. Mayzla oraz od ul. Berka Joselewicza,
-
prywatna część parkingowa od ul. Berka Joselewicza,
-
dodatkowe miejsca parkingowe w strefie Rynku Głównego,
-
11 nowo oddanych apartamentów hotelowych w tej samej kamienicy,
-
doskonały potencjał pod działalność gastronomiczną.
Lokalizacja
Lokal znajduje się w zabytkowej części Oświęcimia. W najbliższym sąsiedztwie znajdują się Zamek, Centrum Żydowskie, Synagoga, Kościół Parafialny oraz hotel Hampton by Hilton. To lokalizacja o dużym natężeniu ruchu pieszego, atrakcyjna zarówno dla mieszkańców, jak i odwiedzających miasto turystów.
Koszty najmu
Do czynszu najmu należy doliczyć 23% VAT oraz koszty centralnego ogrzewania, energii elektrycznej, wody i wywozu nieczystości. Wszystkie media są opomiarowane, a wywóz odpadów odbywa się na podstawie indywidualnej umowy.
Przy podpisaniu umowy najmu pobierana będzie kaucja zabezpieczająca w wysokości jednomiesięcznego czynszu najmu. Do podanej ceny należy doliczyć koszt usługi pośrednictwa.
Nota prawna
Opis oferty zawarty na stronie internetowej sporządzany jest na podstawie oględzin nieruchomości oraz informacji uzyskanych od właściciela, może podlegać aktualizacji i nie stanowi oferty określonej w art. 66 i następnych K.C.Szczegóły



